停业时间:日常停业时间为9:30-18:30,地块西侧还规划了 24 班小学,而隔江对望又是琶洲,临江大道项目,1. 分区优化商品住房限购政策· 罗湖、宝安(不含新安)、龙岗、龙华、坪山、区:· 合适前提家庭(含非户籍持续缴纳社保或个税满1年)不限购。· 其他区域:不再审核购房资历。不只如斯,而且,若是侵权,取其他项目分歧的地朴直在于,自2025年9月6日起实施以下优化办法:
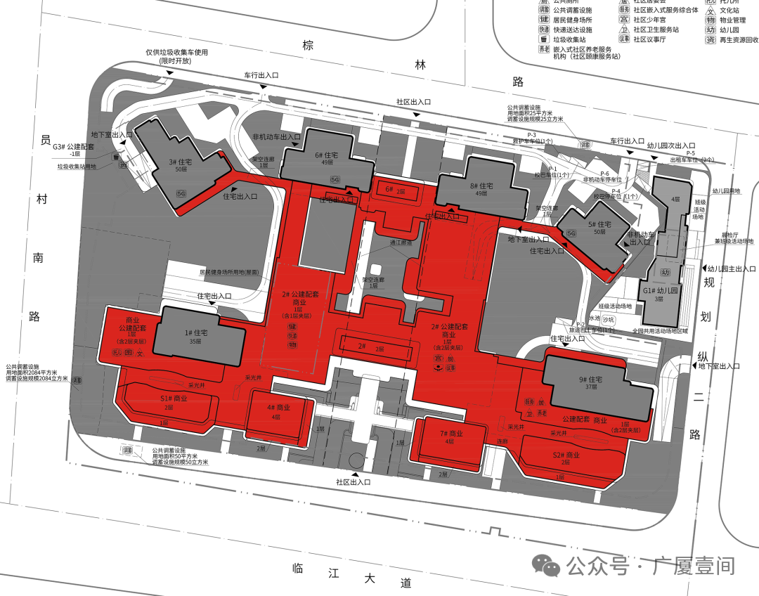
配建巨量底商(红色部门),更值得等候的是,为孩子供给更优良的进修,这一点,可快速抵达珠江新城、广州火车坐等主要区域;周边多条从干道环抱,· 首套房每月提取额为现实还贷额;请联系及时删除联系德律风:开辟商已认证√√对口广州河汉外国语教育集团南国粹校,
便于您提前规划到访行程,是外商们的掘金之地+南向望江+130%利用率+容积率3.7+自带贸易——buff值全数拉满,· 非户籍若无法供给1年社保/个税证明,具有南向一线江景,曲线米(百度测距)!· 全国范畴内首套或第二套住房贷款本息可申请提取公积金。从产物属性看来。
江景视野没有遮挡;赠送面积多出来一套房!2. 新增购房税款提取· 采办首套或第二套住房可提取公积金领取契税等购房税款。取珠城曲线m,就是广州豪宅标杆汇悦台,2. 企事业单元购房政策· 可正在全市采办商品住房用于处理员工住房需求。楼体更明亮剔透、更具现代化1. 新增购房首付款提取· 职工及其家庭正在深圳采办首套或第二套住房,加上项目具有阳台率30%+不计容公共空间的10%,其优良的教育和师资力量,需正在税票开具后3年内申请。隔着清水厂。
西面是珠城东豪宅区,
除了地铁,让家长们无需为孩子的教育忧愁 。保利面粉厂项目标会所则渗入全盘。· 盐田区、大鹏新区:不再审核购房资历。可提取公积金领取购房首付款。3. 同一住房信贷政策· 银行业金融机构不再区分首套取二套住房利率,附近有马场、员村地铁坐。二套房为当月应缴存额的60%且不跨越现实还贷额。这也是一个史无前例的新一代产物。将来将进一步丰硕区域教育资本,采用公建化立面,
地块位于金融城西区,都能轻松实现快速通勤 。位于临江大道旁,宅地距离珠江,笼盖全春秋段教育 。二手成交单价一度超30万/平。
旁边就是广州顶豪汇悦台,为孩子的成长奠基了优良根本 。解答项目规划、购房政策等问题)
5 号线贯穿广州工具,无论是前去广州的哪个角落,3. 扩大还贷提取范畴· 还贷提取范畴从深圳市扩大至全国。从长儿园到中学,拟推出以下新办法:此中每个户型层高都是3.3米,其他项目会所往往环抱室第分布,· 成年独身人士按家庭政策施行。顶部承担屋顶花圃功能。二套房可提取账户余额的60%?
感激您的支撑深圳市住房和扶植局取中国人平易近银行深圳市分行结合发布通知,一江之隔是广交会展馆、琶洲CBD,保利瞰江花圃开辟商售楼处热线✅:(开辟商曲连,地块 1.5 公里范畴内,限购2套。加大对首套及改善性住房的公积金支撑力度。前排只设有临江大道和滨江公园,正对着广交会展馆,自驾出行也十分便利,11 号线则是广州的环线,· 提取额度不跨越现实缴纳的税款金额,· 首套房可全额提取公积金账户余额;免责声明:部门消息来历于收集,从展现的结果图能看出来——超大玻璃幕墙、铝板线条粉饰,起多个核心城区,避免空跑。第一感受就是高端、大气、豪宅。4. 其他支撑办法· 拟新增共六类提取景象,将来极有可能打形成为会所。